Found 227 drawing images for 'Support'
450x395 Support Call Center. Vector Illustration. Support Call Vector
309x243 Hourly Pc Support Fix My Computer With Expert Support Now
450x469 Hands Support Earth Globe Vector Line Icon. Hands Support Earth
1600x932 Used Windfarm Support Vessel For Sale For Offshore Wind Support
2007x2661 Color A Pinwheel With Your Child. Support Prevent Child Abuse
638x479 Information Technology In Support Of Student Centered Learning
228x300 [Upgrade]support Ios 10.3, 2 In 1 Lightning To 3.5mm
1024x827 Large Size Of Living Room Yc Cool Support Carrabassett Best Valley
501x365 Steel Dividable Roof Support Bar For Square Dog Kennel
486x640 I Want Three Of These. Checkout My Website And Support My New
486x640 I Want Three Of These. Checkout My Website And Support My New
300x270 Donate Your Laptop To Support Computer Education For Migrant
512x512 Assist, Attend, Desk, Help, Helpdesk, Lifesaver, Support Icon
512x512 Lifebelt, Lifeguard, Lifesaver, Protection Life, Support Icon
575x425 M 299 Squad Support Machine Gun Zeonicscanlations
800x600 Support Fleahab
880x804 A Amp J Maintenance Support Limited Come To Broughty
512x512 Accountant, Comments, Feedback, Manager, Support Icon Icon
400x399 Continue To Support Ruhs Marching Band Merit Real Estate
640x521 The Same Structural Support Viewed From Above. Using Only Wood
500x400 Metal Bed Frame W Wood Poles And Mattress Support
320x267 Mercedes Mercedes Benz Oem Grille Insert Radiator Support Cover
1000x1126 Overwatch Support Dishes On Mercy's Love Life, Ids Her Unlikely
1081x1081 Ultimate Support Live T Microphone Stand With Ultiboom 3 Way Mic Boom
486x640 I Want Three Of These. Checkout My Website And Support My New
623x685 3d Modeling And Schematic Design Ese Llc Engineering Support
2048x1322 This Is My Thank You For The Support
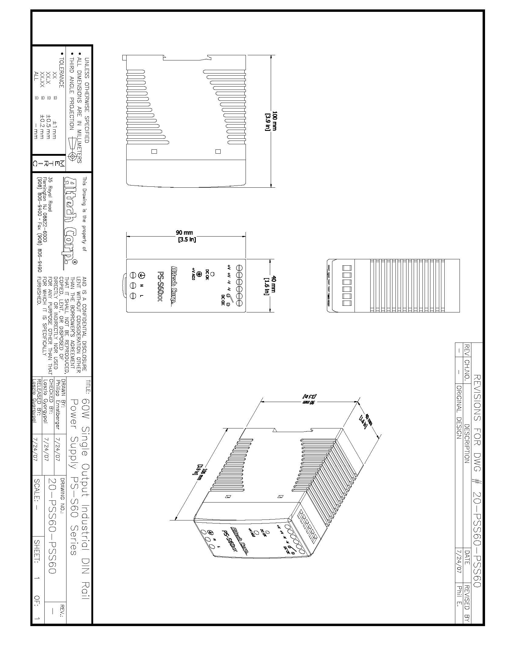
1700x2200 Altech Support Files
500x500 Male Physical Therapist Assisting Woman To Walk With The Support
250x377 Standon Model C92 Saddle Clamp Pipe Support Specification
2632x2918 Opinion California Must Support Students Through The Pipeline
975x698 Pipe Shields B3000 Through B4300 Pre Insulated Support
222x200 Artist Kal Barteski Raising Support For Non Invasive Polar Bear
324x400 Argos Product Support For Polaroid Ib52rfr Refractor Telescope
500x500 Sony Projector Suspension Support, Model Pss 610 Pss610a Bamph
3012x2699 Opinion Usc Must Support Puerto Rican Students Daily Trojan
1113x1121 Recovery Pages Support
2048x1322 This Is My Thank You For The Support
1900x2304 Ahmad Malik Truss Steel Roof Trusses Drawing End Support Details
422x326 But You Dont Look Sick Support For Those With Invisible Illness
350x305 The Usap Portal Science And Support In Antarctica
506x353 Icon Security Camera Upgrade With Smartphone Support
720x720 Nancy Teeple On Twitter Thanks For All The Love Support!
766x1043 Sinking Ship, Support Hollyxfallen By Camspooks
300x300 Nissan Skyline R32 Gtr Gtst Gts 4 Hood Support Rod Grommet 65512 R3000
500x489 Slot Machine Telephone Tech Support Bettor Slots Company Slot
416x432 Support For Social Services
720x576 National Support For Renewable Energy Is
1225x2076 Developing Spreadsheet Based Decision Support Systems New Probate
1900x2304 Ahmad Malik Truss Steel Roof Trusses Drawing End Support Details

All rights to the published drawing images, silhouettes, cliparts, pictures and other materials on GetDrawings.com belong to their respective owners (authors), and the Website Administration does not bear responsibility for their use. All the materials are for personal use only. If you find any inappropriate content or any content that infringes your rights, and you do not want your material to be shown on this website, please contact the administration and we will immediately remove that material protected by copyright.